Leave a Message

Thank you for your message. We will be in touch with you shortly.

Explore Our Properties

Property Description

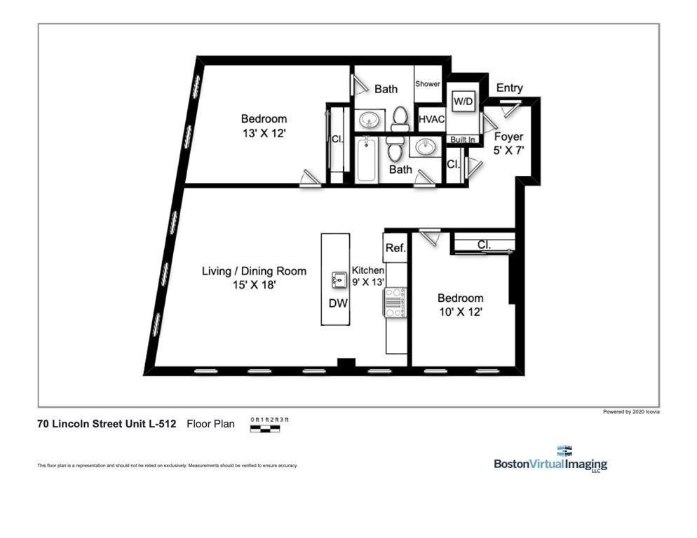
This stunning 2B/2B corner unit is located in the desirable Lincoln Plaza building that offers an ideal layout and is a must-see! The Lincoln Plaza is a professionally managed building with an elevator. With high ceilings, 11 windows, all day sunlight, and fascinating location at the intersections of Financial District, Leather District, Chinatown, and near south station.This unit has an expansive open concept of the living/dining/kitchen areas, making a perfect room to entertain and take in all the city lights and views. The kitchen offers an island and spacious counter space. 2 large bedrooms featuring oversized windows - master bedroom w/ ensuite bath. Spacious entry foyer with excellent storage capacity, also with laundry in unit. A hidden interior common courtyard makes an amazing spot for gathering, children's playdates, or entertaining.

Overview

Property Status
Leased
MLS ID
73339185
Property Type
Condo
Year Built
1910

Features & Amenities

Total Area
1,141 Sq.Ft.
Neighborhood
South Boston
Heat Type
Natural Gas, Forced Air
Laundry Room
In Unit
Appliances
Range, Dishwasher, Disposal, Refrigerator, Freezer, Washer, Dryer
Other Interior Features
Entrance Foyer, Elevator
Lease Price
$4,300/mo
Lease Term
13 MONTHS

Downloads

70 Lincoln Street # 512

Schedule a Tour

We would love to help you see this beautiful home! As a full-service brokerage, we can help you tour. Please submit an offer, and answer questions about the buying process.

Thank you

for your interest in 70 Lincoln Street # 512, Boston, MA 02111

70 Lincoln Street # 512
Navigate
South Boston

Explore South Boston

42.3381° N, 71.0476° W

read more

Follow Us On Instagram